206S0103调节槽
- 简介: 206S0103调节槽,主机型号为SSZ730/200型转载机,技术参数为:高度706mm,宽度1042mm,内宽为680mm。 主要产品:SGZ630、SGZ730、SGZ764、SGZ800、SGZ830、SGZ900、SGZ1000、SGZ1200综采刮板输送机用链轮轴组、中部槽、过渡槽铆焊件以及铸造齿轨、铸造槽帮等;JS30、JS40、JS75型减速机;适用于薄煤层的SGB620/40T、SGB420/30、SGD420/22、SGD320/17B型刮板输送机整机系列。
咨询热线:156-7033-6688
留言给ng电子
产品详细
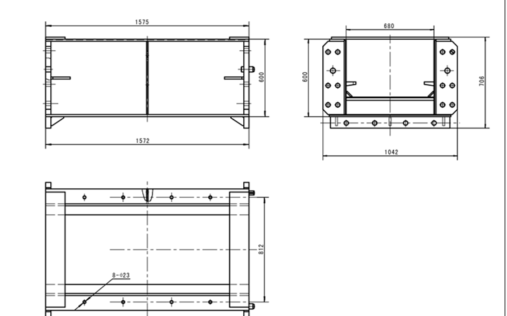
206S0103调节槽,主机型号为SSZ730/200型转载机,技术参数为:高度706mm,宽度1042mm,内宽为680mm。
主要产品:SGZ630、SGZ730、SGZ764、SGZ800、SGZ830、SGZ900、SGZ1000、SGZ1200综采刮板输送机用链轮轴组、中部槽、过渡槽铆焊件以及铸造齿轨、铸造槽帮等;JS30、JS40、JS75型减速机;适用于薄煤层的SGB620/40T、SGB420/30、SGD420/22、SGD320/17B型刮板输送机整机系列。

- 上一篇:167S0106调节槽
- 下一篇:0.5m调节槽


